因貓結緣の鏟屎官小夫妻,日雜風美家簡直暖到我心里!
來源:愛空間科技(北京)有限公司 日期:2022-10-28 09:18:32
- 詳細介紹
@洛洛和@辰辰是一對年輕且元氣滿滿的90后小夫妻,相識是因為有共同的愛好—養貓,對生活飽含熱情,愿意花時間與精力去把小日子經營的有聲有色,目前家里有兩只貓咪,準備裝修在成都的房子。
會面時,兩人開朗健談的樣子,對于新家展開了一番暢想:下班時一起做飯、擼貓,廚房與客廳交流起來無障礙;加班時一個人安安靜靜不被打擾,熱茶咖啡常相伴;周末閑暇時賴床和擼貓、曬太陽;希望擁有和臥室相鄰的衣帽間,起居洗漱和穿衣能夠一步到位......言談間,兩人對生活方式的默契羨煞旁人,能夠幫他們構建出理想中的居所,成了我們最大的目標。
戶型:三室兩廳
風格:日式風
常住人口:2人
面積:115㎡
裝修花費:25萬
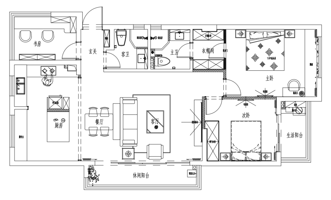
平面布置圖
整體面積115㎡,戶型結構良好,三居室的格局,南北通透,結合兩人的習慣與需求做了如下處理:
①敲掉部分墻面,使廚房形成開放式和回游動線,提升室內采光和空間聯動性。
②主臥安排步入式衣帽間和衛生間,形成完善的起居動線。
③其中一個臥室設計為書房,便于屋主辦公和閱讀。
④全屋布置相應的收納體系,提升儲物性能。
⑤以白色和原木色為基調,點綴中古家具,打造極簡的裝修風格;
玄關
玄關帶有落塵區,地面的黃色小磚與室內地板形成兩種不同的格調,視覺上巧妙區分功能區。
入戶面積不大,所以做的鞋柜偏向于輕薄,15cm深的側翻式柜體,緊湊且實用,讓進出門走動的范圍不受影響。
客廳
客廳屬于當前最流行的橫廳格局,這樣的處理方式讓室內采光非常敞亮大氣。
主沙發放在客廳中間,背后沒有靠墻,中央也沒有特意布置茶幾等常規家具,留出了人與貓咪寬闊的活動區域。
客廳旁邊的角落是一個收納區和展示區,分別擺放了白色鐵藝架、中古風矮柜和實木框全身鏡,用來展示兩人生活中淘來的小物件,為家里增添了一份文藝氣息。
都說觀屋識人,這些看似隨意的小物件,隱約透露著兩人對于生活的熱愛。
沙發的材質軟軟綿綿,不存在任何會造成磕碰的棱角,貓咪嬉鬧較為安全。沙發背后與餐桌保留出50公分的過道,形成便捷的動線,從哪個方向走動都很合理。
白色邊框的推拉門帶有幾絲清爽,外面是超大的陽臺,光線可以全部吸納到屋內,晴天可以優哉游哉地和貓咪一起在外面喝茶賞景,遇到刮風下雨的天氣關上門就一片安逸。
餐廳
餐廳的布置雖然不華麗,但卻屬于耐看型,圓形木桌和幾把散落的座椅,搭配一盞白色玻璃等,促成用餐時的美好心情。
夕陽西下,窗外的橘色暖陽透過紗簾留下一抹身影,光線氤氳在室內,貓咪安靜地在旁邊舔舐著毛發,生活如此美好愜意。
客餐廚幾個區域都是完全敞開的形式,各個地方交流無障礙,實現了男女主人居家時刻陪伴的小心愿。
廚房
廚房把能拆的墻面都拆除,只留下了不能改動的承重墻,使整體采光得到了質的飛躍。細節方面,左右分設中西廚,滿足年輕人偶爾想吃西餐等美食的不同需求,讓三餐更有儀式。
廚房的承重墻一旁單獨打造了吧臺,目前是兩人的休閑角,清晨和午后在家,可以坐在這邊喝杯香茶解解乏。
廚房內部不做吊柜,置物主要依托櫥柜和置物架,不僅方便拿取,配上百葉窗,視覺效果極為清爽。
吧臺這一邊做半開放處理,柜格內剛好放下一臺小型烤箱,其余部分容納廚房的調味品等。
主臥
主臥延續客餐廳的配色,留白的天花與墻面純潔無瑕,搭配胡桃木復古大床,氛圍襯托得放松舒適。
窗簾選用了百葉窗,比普通的布藝簾更利落,陽光透過百葉窗照射到飄窗和地板,整個室內都顯得暖暖的。
白色置物架和床邊柜一樣的功能,卻比較親切隨和,想要拿取的物品一目了然。
主臥利用走道增設衣帽間,一方面實現了女主人的心愿,另一方面緩和了休息區正對衛生間的不適感。
開放式衣柜,用來存放應季的衣物、包包等,另一側的柜子安裝了柜門,里面存放著過季的衣物和被褥。
主衛
起居時,幾步路就可以走到衛生間,省事便捷許多,即便家里有親友留宿,雙衛的布局還能避免擁擠和尷尬。
次臥
次臥的環境依然一派純凈,保留了天然木質的紋理,加以簡約的陳設,讓到訪留宿的父母找到熟悉安寧的氛圍。
素雅的床品與臺燈點綴其中,映襯著自然光線和輕薄的紗簾,溫溫柔柔有家的味道。
書房
書房以玻璃落地窗打造,兩側是視野廣闊的城市景色,在這樣的環境里看書辦公,光線超棒,心情會變好。
除了是主人使用的地盤,這里還是貓咪們常常小憩和發呆的樂園,隨風飄動的紗簾和風景時常讓它們格外好奇。
生活陽臺
生活陽臺作為清洗區和晾曬區來使用,定制一體式儲物柜,內嵌洗衣機、烘干機和洗手臺,洗衣晾曬一步到位。
客衛
客衛位于玄關左側,疫情之下,回到家第一件事就是放下包包好好洗手,這和兩個的日常習慣較為貼近。
