- 詳細介紹
工作安穩離家近,這是多少年輕人的夢想之一。兩邊老人有錢出錢有力出力,幫襯小夫妻買房安家,擁有人生第一套屬于自己的房子,雖不完美但一定很滿足~
屋主介紹
這是一對新婚的年輕小夫妻,兩人都是當地的公務員,工作穩定,生活悠閑,熱愛生活的他們,希望按照理想的生活方式,把新家打造成可以安放下倆人所有愛好的地方。
“我和老婆都喜歡現代簡約風格,她性格比較文靜,有輕微潔癖,家里總是喜歡收拾得干干凈凈,以前是學藝術專業出身的,比較欣賞梵高的作品,這次裝完新家,我想把梵高的畫作也弄進來給她個驚喜。說說我自己吧,我比較喜歡社交,平日里經常跟朋友聚會,自己呆在家習慣打打游戲來放松,要是家里有個大空間作為游戲室那就太好了。”男主人@普先生說到。
屋主家基本資料
蘇州市新吳區/極簡/電梯樓/室內135㎡/4室2廳/2人/裝修花費19.4W
①所需功能:開放式餐廚區、長輩房、客房、游戲室、儲物功能
②生活方式:追劇、閱讀、喝咖啡、喜歡邀約親人朋友到家聚餐
③設計需求:客廳寬敞明亮,和餐廳動線要科學;廚房儲物不要全封閉式,便于散味通風和清潔;游戲室要帶有些科技感,氛圍也要到位。
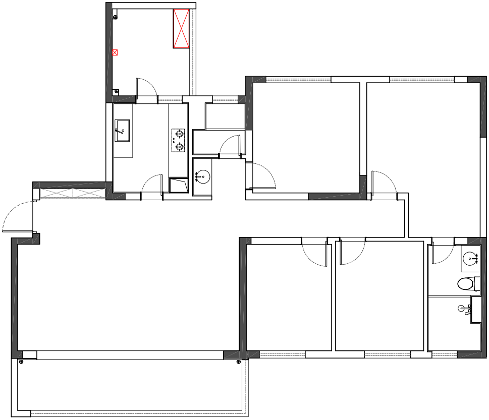
原始戶型圖
戶型解析:
房子是一套毛坯,整體上來說沒有太多硬傷需要改動,客餐廳格局比較方正,臥室和多功能室各自為獨立的空間,多功能室的入口在衛生間處的盥洗區,生活動線上極為不方便。
平面布置圖
改造亮點:
①將主臥與隔壁的多功能室打通,兩個空間之間使用4聯動木門分隔,多功能室原入口封閉,形成一個大套間。
②餐廳墻面定制一組餐邊柜,打造餐廳+西廚的形式,滿足聚會豐富的多樣屬性。
③拆除原始電視背景墻,現場制作完成造型背景,提升觀賞性。
色彩搭配
全屋采用了低飽和度和冷系配色,清爽高級,簡練的視覺效果脫穎而出,為屋主提供了解壓輕松的居住環境。
客廳
搭配:客廳精簡家具配置,以此來搭配這潔白雅致的環境,奶白色三人座沙發不按套路出牌,微微傾斜放置,與圓形黑色玻璃邊幾共同促成了居家悠閑時光。
拆改:陽臺納入客廳,采光顯著提升,互動范圍變寬敞了,家里親友扎堆不會擁擠,為男主人的聚會愛好提供了絕佳的場地。
設計亮點:電視背景墻采用深藍色塊進行局部鋪貼,以此實現功能的劃分,一片純白中少有的深色,吸睛而神秘。
設計亮點:過道是男主人給妻子的驚喜!一塊塊馬賽克彩繪墻磚精心拼湊成梵高的畫像,藝術氛圍濃郁,家里檔次都提升了,這波狗糧我和我的團隊倒是吃得飽飽的。
餐廚區
動線:客餐廳之間采用全開放式來打造出大宅氣派,身處家中,兩人可以時時刻刻實現無障礙交流,親友聚會可同時容納多人使用。
工藝:餐廳背景墻安裝花崗巖鋪貼墻面,并在現場制作島臺,來實現公共區域表達的干凈與侘寂,簡單的三餐與食材,這方小角落足以應付。
規劃:島臺預留的插板可為日常生活中所需的電器設備提供便利,方便煮火鍋、泡咖啡或者給手機電腦充電。
生活方式:插花、看書,再配上一杯清茶,閑來無事掛心頭,便是人間好時節。
主臥
設計亮點:臥室地面不同于公區,采用顏色溫暖的人字拼原木材質,可以在室內赤腳行走。床頭背景墻使用乳膠漆刷半墻,營造拼色效果,更加美觀有層次。
動線:小夫妻二人希望通過減少房間數量提升生活品質,于是我們將隔壁入口不合理的房間合并到主臥,成為一個多功能的大套房,用玻璃四聯門進行隔斷。
設計亮點:臥室床選用手工藤編款式,木材的溫潤與透氣的藤編,帶來了放松與自由感。
多功能室
設計亮點:從主臥步入多功能室只需幾步路,這里是男主人的游戲室和潮玩用品收藏地。暗黑的配色炫酷無比,收納柜帶有燈光照明,加上游戲機自帶的藍光,科技感十足。
工藝:黑色木百葉不同于公共區域的白色豎百葉,它在通透性上多了一份有個性的酷感,同時余光透過百葉間隙讓時間變得慢下來。
父母房
工藝:長輩房床邊柜采用現場制作,量尺打造,原木材質從墻面一直延伸到踢腳線,與柜體形成一體。懸空的桌面讓腳下減少了死角,桌面方便老人隨手擺放貼身零碎小物件。
客臥
搭配:客臥保留最開始的純粹,一片純白的環境點綴上1.5米的大床,展現出干凈舒適的睡眠氛圍。
衛生間
收納:浴室柜+四開門鏡柜具備較強的收納性能,木質柜體襯托純白洗手臺,彰顯清雅簡約的風范。淋浴房內,墻壁打造出三層壁龕可供擺放洗護用品,無需安裝多余的置物架。
