咖啡店老板巧改毛坯房“高級灰雕塑風”邊藝術邊生活
來源:愛空間科技(北京)有限公司 日期:2022-10-31 14:12:21
- 詳細介紹
『前言』
本案位于廣州白云區,建面135㎡,毛坯房。
即將步入婚姻殿堂的屋主兩人,一個是穩定的金融從業者,一個是忙碌的咖啡店老板,家里養了只可愛的“雪納瑞”。男主人處于事業上升期,大多時候加班到很晚,女主人每天照看店鋪,兩人居家收拾的時間很少。回到家換上家居服就癱在客廳,玩會手機、看個電影,或者逗逗愛寵;碰到周末,一起抽空做頓飯,飯后區樓下遛遛狗,這就是兩人的生活常態。對于這次裝修,他們需求有以下幾點:
①每個區域有專門的收納,可以隨手把物品放進柜子,因為目前沒有精力和時間進行分類歸納。
②客餐廳敞亮一些,回到家能夠感受到輕松與自在。
③臥室有個獨立的生活套系,起居洗漱能夠在套內完成,質感高級一些。
設計亮點:
超大客廳|電視壁柜|主臥套房|多功能區域|隱形門|隱藏式線燈
戶型:三室兩廳
風格:現代簡約
常住人口:2人
面積:135㎡
裝修花費:25萬
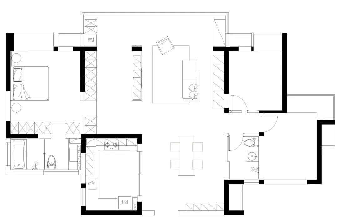
原始戶型圖
實地查驗時我們發現,原戶型為4室2廳2衛,整體寬敞方正。
但存在布局零碎、動線不合理、占比不科學等問題,坐東朝西的走向和墻體多,采光受到了影響。
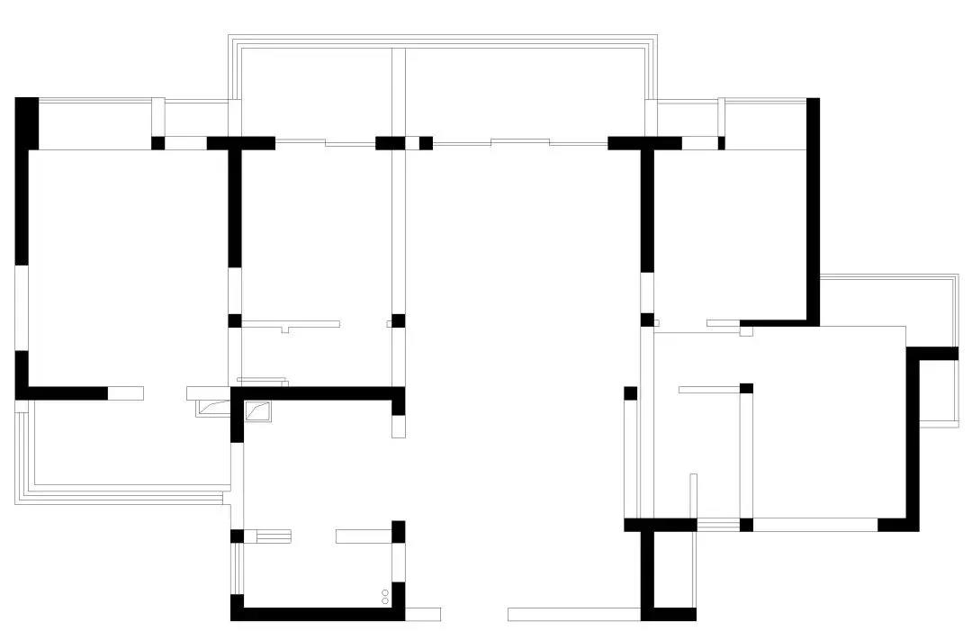
平面布置圖
針對以上問題,調整策略如下:
①用細膩的微水泥、溫潤的木材、柔軟的羊毛、以及絲與麻等材質塑造清冷黑高級風。
②書房拆除以后改為衣帽間,和毗鄰的陽臺相連,主臥更寬敞。
③陽臺、客廳、廚房的隔墻徹底清除,增加室內自然采光,提升各個功能區的互動性。玄關
進門區域毗鄰餐廳,定制體量輕薄的通頂鞋柜,白色無把手外觀搭配部分木紋肌理,簡樸自然。
封閉的柜門內部是多層隔板,容納三四十雙鞋子完全不在話下,挑空的地方可以擺放進出門常用物件或者裝飾品。
客廳
從門廳看向客廳,以灰色為主,將陽臺納入使用,南北通透的開闊格局,通風和采光自不必說啦~為了中和灰色調的清冷,大部分材質選用木質為主,在保留端莊的同時融入溫馨氛圍。
站在陽臺區域看向客廳,無主燈設計簡約大氣,白色天花搭配簡約的射燈,看起來干凈利落。
沙發背后一組滿墻的壁柜兼具儲物和展示功能,與墻面同質同色的柜體讓環境充滿銜接性,沒有拉手的反彈器柜門在視覺上更加絲滑簡潔,中間挑空的臺面有燈帶照明,可以放裝飾物件,封閉的部分儲存生活雜物綽綽有余。
電視墻免除復雜的造型,木質嵌入式墻體時尚耐看,電視機主體直接包裹在其中,比較穩妥安心。
客廳是屋主和愛寵待得最多的地方,也是較大的公共區域,沿著壁柜擺放一排2+1沙發組合,并在地板上鋪滿羊毛地毯,躺沙發或者坐在地上都非常舒適,居家十分悠閑。
摒棄茶幾的“阻攔”,在客廳想怎么舒展就怎么舒展,玩鬧互動特別方便,狗狗特別喜歡在這里撒潑打滾。
條形燈的光源散射均勻,照明范圍廣,是家庭氛圍的必備單品!當夜幕降臨,在客廳追劇時,帶來浪漫的沉浸式觀影體驗。
餐廳
客餐廳之間僅僅相隔一個過道,視覺上既獨立又相連,有各自的功能,同時又具備較高的互動性。
餐廳選用黑色鐵藝細腳餐桌椅,營造出端莊且輕盈的用餐氛圍,碰到親友聚餐,1.8m的餐桌足夠七八個人圍桌而坐。頂部安裝三頭球型射燈,增添了絕妙的點綴。
墻面是一幅高端定制的克萊因藍抽象油畫,寓意自由和平靜的理想生活,讓人一眼便領悟到驚艷。
餐桌自帶幾分天然質樸的格調,除了一日三餐,這邊對于兩人來說還是一個絕佳的閱讀角,看看雜志喝喝下午茶再合適不過了。
廚房
廚房位于餐廳另一側,深藍玻璃推拉門使得餐廳與廚房聯系非常密切。內部的風格和客餐廳保持一致,L型櫥柜配備完善的洗切炒動線,電器設備隱藏在柜體中,使用時間再久也不會雜亂。
▼過道
廊道的墻面與臥室門、電視背景墻保持一致,門框得以隱形,用極簡的方式巧妙隔絕出私人和公共區域,毫無視覺負擔。
主臥
來到主臥,配色跟客餐廳一脈相承,在自然光線的照射下溫潤靜謐,營造出適合入睡的氛圍。
床頭背景墻用木飾面鋪貼,嵌入暖光燈帶,木材的歲月痕跡在燈光的包裹下生出別樣的溫暖。
床頭柜周圍嵌入燈帶,融入中古風臺燈,內斂雅致。
衛生間與休息區設置隱形門,連接兩側的通頂衣柜,柜體上帶有抽屜和挑空擺臺,存在度減弱,舒適度極高。
主衛
主衛進行了干濕分離,不同飽和度的灰色豐富層次。旁邊安裝烘干毛巾架,每天都能使用到干爽衛生的毛巾。
次臥
灰調的背景墻、床品搭在一起,低調高雅。一盞金屬吊燈垂在床頭,平添幾分輕奢美。
黑色床頭柜造型別致,擺放兩個白色藝術陶品,特別精美。
客臥
客臥布置得比較清爽,純白的墻面、灰色的衣柜和床頭靠背,交織出一個素凈雅致的環境,再加上暖色的木桌和木柜,整個室內看著極為溫暖澄凈。
陽臺
陽臺連接客廳與背后的衣帽間,圍繞電視背景墻向四周延伸,組成了一條洄游動線,洗衣晾曬一氣呵成,減輕了居家衛生的工作量。
客衛
客衛不大,玻璃隔斷進行了干濕分離,化妝鏡帶有智能燈,細節處彰顯品質。
