坦白了!我家其實只有80㎡,卻能住出160㎡的高級感~
來源:愛空間科技(北京)有限公司 日期:2022-11-01 08:24:53
- 詳細介紹
作為90后一家三口在廣州的小家,起初我們是想設計成溫暖輕松的日式風的,希望回到家是愜意的港灣。沒想到在看樣板間時,第一眼被黑白灰吸引,最后向著簡約大氣的方向去了。
關于新家的需求有以下幾點:
1. 喜歡敞開式的家居環境,所以盡可能不做過多的封閉。
2. 希望打造一個輕松、慵懶,可隨處辦公或者游戲的地方。
3. 無論在哪個區域,家庭成員間都能輕易的彼此關注到,分享到生活的點點滴滴。
設計師通過開放廚房、休閑陽臺、半開放兒童房、主臥門改位,讓各臥室和客餐廳之間的關聯性變強,實現了我們想要的,可以隨時隨地溝通交流、互相陪伴,這是我最滿意的地方。
房屋信息:
面積:80㎡
戶型:兩室兩廳一衛
常住人口:3人
風格:現代簡約
裝修成本:22萬
▲ 原始戶型圖
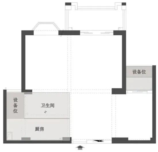
存在缺陷:
1. 陽臺超大,視野絕佳,如果只用來晾衣,有點可惜。
2. 廚房是長條型,略顯雞肋。
3. 衛生間塞不下浴缸。
▲ 平面布局圖
設計策略:
1. 廚衛一同調轉90°,浴室塞下浴缸,廚房改為開放式。
2. 原主臥門從廚房改到電視墻位置,增強和客廳的關聯性,廚房也擴容增加了一排高柜。
3. 陽臺做地臺,改為休閑區,突出窗景。
4. 梁體位置做弧形埡口,裝飾的同時,也化解了大梁壓頂的尷尬。
玄關
入戶區定制原木玄關柜,內部設計了掛衣區和包包區,下方專門做了一個懸空的換鞋凳方便平時進出門坐下換鞋。
客廳
客廳灰藍色凸顯穩重的品質,亞麻質地的沙發內部填充棉花和羽絨,細膩柔軟,慵懶放松。
家具也盡量避免帶直角邊緣的款式,避免孩子日常走動發生磕碰。
藤編休閑椅簡約舒適,羊絨地毯質地輕柔。沙發旁的油橄欖是我的最愛,耐旱,好養,多曬太陽就行。
有娃之后儲物需求激增,舍棄傳統的電視背景墻,在吊頂預留20公分的槽用來暗藏投影幕布。
一整排的儲物柜,收納兒子的尿片,奶粉,各種時期的玩具。
盡量多給予小朋友一些自己動手的機會,培養他自己學會收納的好習慣。
主臥的弧形門跟柜子相連,厚厚的門洞和陽臺大梁的弧形埡口相得益彰, 呈現出一種樸實的童趣。
陽臺
打通生活陽臺與客廳,并將地面抬高16公分,用來襯托窗景。
我和太太經常在此陪寶寶講故事、做手工,看窗外的夕陽西下,好不樂哉。
陽臺兩端有兩個細長的構造柱,設計師把頂部做了弧形,加些層板做書架,做成壁龕,可以擺放兒子的玩具和書籍,喵星人也經常喜歡待在這里~
窗外是別墅景+湖景+山景,希望兒子在這美麗又寬廣的景色里,度過一個五彩繽紛的童年時光。
餐廳
餐廳與客廳是一體化布設,減少中間隔斷,有利于家人間的溝通與交流。
桌子和長凳是定制的,餐桌的水泥質感要更加細膩,方便用餐后的清理。為了使用壽命更長,建議搭配餐具墊使用,吃飯也會更有儀式。
廚房
調調整后的廚房面積更寬敞,方便分工下廚,兩個人一起忙碌的身影,充滿了煙火氣。
原木櫥柜、淳樸的顏色,自然清新,上下吊柜讓各類餐廚用具完美收納其中,一側墻上還設置了層板,用來放置日常使用頻率較高的碗筷,拿取便捷。
長虹玻璃門后是公衛,隔絕視線但不隔絕光線。
桌上熱氣騰騰的飯菜,是家的溫暖,幸福的生活,從一日三餐開始。
主臥
原木拱形門洞增加進入主臥的儀式感,整體沿用了低調柔和的風格。摒棄多余的裝飾,掛畫、臺燈、吊燈,營造出舒適安心的睡眠氛圍。
衣柜門上半部分采用長虹玻璃,為了更顯整潔,玻璃背后貼了黑色半透薄膜,下板部分使用木板,增加安全性。
兒童房
兒子現在一歲半,五年內都不會需要私密空間,所以設計師沒有做隔斷的實體墻, 而是上半部分做成玻璃,讓餐廳也能借到兒童房的采光,下半部分考慮安全問題做成木板,平時可以全部打開,最大限度讓小朋友自由進出。
為保證孩子成長所需專屬功能區,除了必備床組、落地衣柜,其余皆留置日后增添家具彈性運用。

這個升降椅,是在中古店淘來的,目前當成寶寶餐椅使用。

洞洞板,老少四季皆宜的居家必備單品。為了跟柜子顏色保持統一,用柜體板自己打孔diy的底板和層架,淘寶上購買小棍子。
小房子的造型可愛別致,深受兒子喜愛,高度也是根據他的身高來打造的。
衛生間
進入衛浴間需要經過廚房的走道,為了方便起夜,在入口位置裝了感應地燈。
墻面以兩種瓷磚做拼貼,放大了視覺空間,絲毫不顯壓抑。
馬桶改到靠窗的位置,距離原管道位置不算太遠,墻排馬桶即可保障排污問題。
改造后的衛生間放下了我心心念念的浴缸,每天睡前,泡個熱水澡,真是舒服又解壓。
