穿越民國劇場品質宅,83㎡老破舊變身「古典生活館」
來源:愛空間科技(北京)有限公司 日期:2022-11-03 15:00:01
- 詳細介紹
說在前面
如果說旅行是在時空游走之際,重新建構自我與世界的開端,那么居家日常則是以分寸不差之距,觀看自己的過程。從前的我并不擅長收拾屋子,也很少下廚做飯,幸而借著爸媽把這套老房子交給我的契機,一切都慢慢改觀,其實還要感謝設計師,喚起我對家裝的期待,體驗到新的生活方式。
由于是80年代的老房,設計初期量房和確定房體結構就挺費精力,再根據原戶型特點和需求喜好定制方案。確定為帶有南洋風情的新古典風格,設計師將木皮鏤空元素、藤編元素、復古綠半墻、石膏線造型以及成套定制的同色調木制家具統統搬進這個空間中,實現了“復古雅居”的夢想。
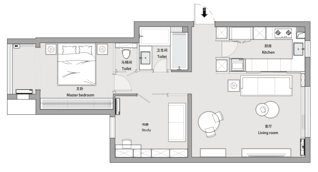
房屋信息:
面積:83㎡
戶型:兩室一廳一衛
常住人口:1人
風格:新古典
裝修成本:22萬
平面圖
改造亮點:
? 玄關增加儲物柜。
? 廚房門兩側分別做定制柜用來收納;
? 次臥改成書房,增加了大面積書柜;
? 主臥面積縮小一塊,用來安置馬桶間,原來的衛生間則改為浴室;
? 用藤編家具、壓花玻璃、長虹玻璃等元素打造迷人的復古風格;
玄關
玄關柜占用部分廚房空間,“藏”在墻壁里。柜門用木皮鏤空設計,呈現南洋風溫潤質樸的氛圍調性。
離門口近的柜子放鞋,另外一組放生活雜物,平時常常會用到的酒精噴霧、口罩、記號筆、鑰匙、小刀剪刀、電卡水卡等需要放在這里,方便拿取使用。
往里走是入戶通道,簡單放上帶隔層的鞋凳,簡易的掛鉤,還有胡桃木邊的穿衣鏡,不足一平米的換衣區就搭建好了。
來看看我特選的花型地毯,仿佛一朵向屋內生長的花朵,站在上面不僅腳感舒適,進出門也充滿儀式感。
墻上的掛鉤更多的是被我用來放包包,每日出門就站在鏡子前挑選搭配,頗為順手。
客餐廳
全屋的復古綠半墻是我最愛的,入目舒適,配上石膏線造型生出些許可愛感。搭配人字拼胡桃木色木地板,帶有一股法式風情。
將原來的陽臺封起來,改成定制柜。無形之中加寬窗臺臺面,變成一個小吧臺。
沙發旁邊的壁龕作茶幾的補充收納,用來放書,坐在沙發上隨手抽取一本進行閱讀,很是便捷。
柔軟抱枕、皮沙發,配上心心念念的櫻桃木茶幾,這才是溫馨的所在。
長虹玻璃茶幾面+實木圍邊,滿足我對所有材質的期待,從此,這里不僅是喝茶會客的地方,也是家里面呆的最多的位置,辦公、追劇,連發呆都是可愛的。
電視柜加入藤編元素,與實木混搭出時髦感,襯出自然悠閑的生活氛圍。
電視柜、茶幾、沙發都是設計師找的廠家特別定制,避免不同品牌產生的色差問題。
餐廳
入手的這套藤編餐桌椅,因為它的顏值及實用功能,適合看書、做手工,性價比很高。
一組容量可觀的實木餐邊柜,復古感濃厚,不僅顏色搭,還有一股撲面而來的大自然本色風情,讓人感覺無比舒適。
餐桌覆上一層鋼化玻璃,起到保護桌面、方便清潔的作用。餐椅靠背微仰,凳腿外八優雅造型,穩固好看,藤編坐感舒適彈性。
空氣清涼,在角落里靜靜閱讀,這一刻的心安,彌足珍貴。
廚房
U 型廚房,依勢定制櫥柜,儲物空間充足分區明顯。常用區/不常用區劃分詳細,滿足日常需要。
烤箱、蒸箱等各種電器設備都嵌入其中,藍色的門板搭配白色的臺面,大氣華美,整齊陳列的廚房用品和完善的使用動線在細節上體現出講究。
靠近客廳的一側用透明玻璃墻取代實墻,穿透度十足的視線,從廚房照進來的陽光讓客廳更加明亮。
過道
過道同廚房一樣,藍白相間的方形地磚彼此呼應。以地磚拼接的方式,讓各區域之間有了邊界感。
主臥
清新簡約的主臥室,木地板+復古綠半墻的搭配溫馨又舒適 ,精致的仿古壁燈在淡雅的臥室里讓人移不開眼~
床頭板藤編輕盈自然,淡雅的背景墻為臥室空間增加溫柔靈動的感覺,中和深色床體和房間門的沉悶感,這抹清新綠,有初夏的味道啦!
無柜門的床頭柜更能打造自然通透感。燈也是這個臥室的亮點之一,仿古壁燈是后現代風格,純白的不透明燈罩調性十足。
通頂定制衣柜是啞光淺杏色烤漆柜門,搭配銀色極窄造型拉手,與臥室融為一體,很高級。天花板預埋投影儀,臥室秒變電影院,舒服躺在床上觀影,完全不影響房間的整潔美觀度。
書房
書房都采用高門設計,樣式頗為復古,一眼望去,滿滿的視覺享受。
長時間對著電腦肩頸受不了,需要在沙發上休息放松一會兒,邊幾式的小雙層柜,擺放常吃的零食,也做裝飾用。
定制的成品書桌和書柜,中間留白的方式,避免壓迫感,臺面上還可以擺放一些零碎的小物品。
書桌也很別致,黑胡桃木實木材質,巧克力色典雅高級,輕復古感讓我心生喜愛,木肌紋理清晰流暢。寬大的桌面有充分的置物空間擺上書本、電腦、臺燈、綠植、水杯…都ok。
衛生間
浴室和馬桶間是相互獨立的,簡單的干濕分離,最大程度保持空間干燥清潔。
浴室柜對面是浴缸,墻面全部用淺青色釉面磚,清新簡約。
坐在浴缸里透過不銹鋼玻璃看去,感覺有「自然采光」無止盡蔓延入室,實現無比放松的夢幻沐浴情境。
壁掛馬桶后方是磁吸墻,所有鐵件物品都可以吸附在墻上,完全不占臺面空間,想放哪兒放哪兒,避免掛鉤、粘鉤破壞墻面。
