三代同堂的別墅設計,室內優雅沉穩,打造閑適的美式天倫空間!
來源:北京居佳祥和裝飾工程有限公司 日期:2022-12-14 11:30:35
- 詳細介紹
這是一個245㎡的兩層別墅,擁有非凡氣度的美式家居,業主夫妻二人對生活有著精細化的追求與見解,有一個4歲的兒子童真可愛,孩子奶奶與他們一起居住,幫忙照顧孩子。夫婦二人對每一位成員居住空間的規劃和要求很高,風格上傾向于美式。他們用心與設計師交流,把生活中的情感融入空間規劃之中,共同打造出了一個理想中的家。
設計理念和裝修風格
在本案中,空間的體塊與樓層之間,設計師在大同之中追尋獨特,建立人與空間、人與人之間的情感聯系。強調線形流動的變化,將室內雕刻工藝集中在裝飾和陳設藝術上,居室之間用不同的色彩打造不同的氣質,構成室內華美瑰麗的氣氛。
以下圖片來自于DE設計。
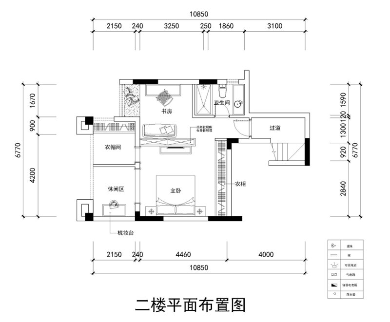
戶型圖
一層為主要活動、會客區,老人房和兒童房也設置在此,方便老人和孩子日常起居。二層主要為業主夫妻二人的私人活動空間,功能配備十分齊全。業主重視對臥室的規劃,充分考慮人性化需求,每一個臥室都帶有衣帽間,與衛生間也特別臨近。
客廳
入門左手邊就是客廳,以一個美式白色漆面邊柜做過渡,一面金色美式雕刻立體圓鏡洋溢著無比生動的層次感,似注入生命一般,匯聚整個空間的靈氣,散發出迷人的優雅。
客廳整體色彩以中性灰和棕黃色為主色調,加入原木元素注入溫潤的氣息,不會感覺到絲毫沉悶,反而被濃烈穩重典雅感包圍。
細節上注重雕刻線條的藝術之美,無論是吊頂面的棱形紋理,還是墻壁邊角線的層層疊搭,或是沙發、茶幾、電視柜等硬裝的雕刻花紋,設計師力圖以最簡單的線條糅合出獨特不繁復的美,彰顯一絲不茍的精致家裝氛圍。
墻面運用淺灰色護墻板搭配優質乳膠漆,以彰顯貴氣,烘托輕奢效果,仿佛走進了歐美貴族的家~
中央一盞美式全銅吊燈散發著溫暖色調,平衡客廳光線,渲染蘊韻格調。夜晚一家四口坐在客廳觀看電視,其樂融融。
沒有選擇繁復多彩的軟裝,反而用素雅的白色布藝沙發和絨面寶石藍遮光窗簾、棕色地毯賦予客廳古典美感,襯托出美式家具的輕松與優雅。
實木茶幾造型古樸簡約,溫潤的色調帶有親和力,無論是感官上還是心理上給人的感覺都特別寧和舒適。
簡筆掛畫清雅自然,金屬邊框與左側立體圓鏡相互呼應,內含輕奢之意。清晰的植物脈絡,以最簡的方式帶人回歸自然的生活,這懸于墻壁的風景,為客廳開啟了一扇遠望遐想的窗。
實木布藝沙發造型柔美,邊角設計用弧線與精湛的雕刻技藝凝結生活的感動,家也是可以擁有如此生動的自由。
兩把經典美式鄉村復古橡木架沙發椅放置于陽臺,老人可以安靜地坐在陽光前,享受世間的這份安寧。
餐廳
餐廳與客廳是聯通空間,三面淺灰色護墻板墻壁加上吊燈、壁燈帶來的光影疊加,溫馨、格調。
一家人圍坐著圓形餐桌用餐,心靈之間的交流更加密切,成為每個家庭成員最珍惜的幸福時光~
餐廳裝飾用簡單的陳設,帶來整個空間的韻律感十足。墻壁上的枝葉紋裝飾掛畫和餐桌上的清新白花,帶來了柔美的氣質。
餐廳旁邊就是樓道,古典造型設計帶有神秘感。
主臥
主臥整體營造的是靜謐的氛圍。女業主是一個可愛的、充滿浪漫主義想象力的妙人兒,她希望居住空間帶有藍天的自由和純凈氣息,能讓她的身心非常舒適。
設計師用藍色、白色和實木棕黃色,配以硬裝簡單的造型和線條,將美式風格的大氣隨意,和業主憧憬的效果結合為一體,使主臥散發出沉靜清麗的氣質。
房間整體色彩搭配如冰淇淋般清甜柔美,床頭不規則弧形邊線設計更是添了溫婉之氣。床頭兩邊佇立的實木圓柱中和了粉藍色的輕盈感,彰顯華美。
除了色調和氛圍,主臥的空間設計也是亮點。其實整個二樓就是由一道門而入,集休閑空間、衣帽間、書房、衛生間為一體的主臥空間。
休閑區現在主要放置梳妝臺,后續可隨業主喜好添置家具。梳妝臺選擇的是女業主喜愛的美式風格,原始穩重的設計,大方得體的裝飾,讓美式生活的溫暖延伸。
書房
書桌供男業主偶爾伏案和小讀之用,一張原木書桌、一把轉椅、一盞銀色金屬臺燈,業主可以在安靜平和的氛圍中理性地思考。
老人房
客房設計凸顯雍容低調的氣質,非常符合老人的審美,帶給老人恬靜悠然的居住環境。很貼心地設置了衣帽間,可以有效地收納。
窗簾、床體設計分別于客廳、主臥一脈相承,在居室個性獨特的氣質中保持了空間上的呼應。
每一處陳設都精美別致,既考慮美觀,又講究其實用性。
兒童房
客房門正對,經過道就是兒童房。
兒童房主色調是更為沉靜的深藍色調,配以較為童真的邊飾和花紋,營造的是睿智又略帶調皮的空間氛圍。
帆船式樣的背景墻紙帶有“讓夢想遠航”的寓意,象征著父母對孩子未來殷切的祝禱。書桌上方用一個大相框作為自由的照片墻,記錄著孩子成長的點點滴滴,這樣的愛,無處不在~
次衛
亮麗整潔的洗手臺讓洗漱都能帶有愉快的心情。
次衛做了干濕分離,空間開闊不顯擁擠,整體色調素雅大氣。
最后的話
美可以有許多不同的形態、不同的氣質,最重要的是將之轉換融入到我們向往的生活中來,用設計融合美,才是最有價值的事情。這樣帶有包容大氣之感的美式風格,真的令人神往~
