復古綠+高級灰>貴族豪宅?99%的人都不知道!
來源:成都愛空間整裝公司 日期:2022-11-28 09:01:18
- 詳細介紹
『前言』
沒有什么比待在自己家里更能撫慰人心――簡·奧斯汀
坐標深圳|一個緊臨地鐵口的房子,卻是我們在這座城的一個極具幸福感的落腳點。雖然是二手房,但是好好裝飾一下也能美美的。上班時是精致的白領,一絲不茍,下班后就希望自己完全自在放空,享受生活,所以擁有一個休閑娛樂空間極為重要,品茶、閱讀、游戲,讓家更加溫暖,讓生活更加繽紛。
設計師以復古綠和高級灰為基調,加上小心機的細節裝飾打造了一個極具個性的生活空間。餐廳卡座,榻榻米書房,多功能陽臺等為全屋增添了更多色彩也滿足了我對家所有的幻想。
房屋信息:
戶型:兩室一廳
風格:北歐風
常住人口:2人
面積:95㎡
裝修花費:13萬
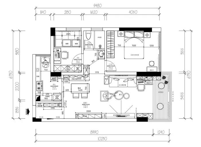
平面布局圖
方方正正的戶型能最大程度的使用空間,不浪費每一個區域。巧妙的設計讓頗大的陽臺得到充分的利用。動態區域設計在一條動線上,方便日常的活動。
玄關
略長的玄關為了有更好的光線,除了頂燈,在鞋柜鏤空部分也安裝了燈帶。入戶區的掛畫巧妙的隱藏了電源箱。黃銅色的掛鉤點綴了單調的墻,回到家可以把外套,包包掛在這里。
六邊形的方磚不僅體現北歐風格,也極好的劃分出玄關區,錯位排列增加空間的藝術性。
客廳
客廳沒有設計吊頂,保留原始的樣貌,一直延伸至餐廳,拉升了視覺效果。金屬元素的玻璃球吊燈為整個空間增加了藝術性。
沙發背景墻采用灰色+白色的文化磚為主基調,搭配奶油灰的布藝沙發,北歐風格中的文藝氣息瞬間顯現。粉色的鐵藝茶幾為淺色的背景增加幾分溫暖。
電視柜采用了上下結合的方式,增加了收納空間,也裝飾了電視背景墻。柜子選用的白色和原木色體現了北歐風的自然之美。射燈的安裝,不僅能增加光源,還可照亮柜子里的裝飾品。
鐘愛的綠豆灰作為電視背景墻同吊頂一樣一直延伸出去,強烈的色彩對比增加屋子的空間感。搭配北歐風經典的天堂鳥綠植,霎時生機盎然。
陽臺
陽臺延伸出的一個區域,增設了電腦,成為先生最想擁有的沖浪天地,休息日可以窩在這里舒舒服服的打游戲。錯位的墻上書架更具立體感,與電視柜色調一致的獨柜增加了陽臺的收納空間。
陽臺另一側放置了懶人沙發,地上鋪上了地毯,午后沐浴著陽光,捧一本書生活也是十分愜意之事。復古綠的斷面窗簾不僅遮光效果極佳,也為空間增加了優雅的氣息。
餐廳
餐廳位于廚房門外,玻璃谷倉門的設計也成為餐廳的裝飾品。餐燈采用長線設計,就餐時能更加清晰的照亮食物。與電視柜同樣材質的餐邊柜既是收納柜又是裝飾柜,一個柜子滿足多種需求。
餐椅的一側設計為卡座,朋友聚會時也有足夠的聚餐空間,同時卡座可以打開,又是一個儲物柜。另一側選用少女粉和復古綠的絲絨椅子,跳躍的色彩搭配為餐廳增加幾分活力。
廚房
即使工作繁忙也要精致生活,喜歡做甜品的我烤箱是必不可少的,周末做上幾份精致的甜品,生活也會如此甜甜蜜蜜。嵌入式的設計減輕操作臺擺放物品的壓力,也能讓廚房看起來整齊干凈。
臥室
床頭背景墻延續客廳的元素,復古綠與床品搭配整體和諧統一,窗簾則是白紗加絨布,透光與遮光都能滿足。
原木色的床、床頭柜有幾分回歸自然的感覺,金屬材料的壁燈又把自然拉向現代。每個安靜的夜晚,打開燈,捧一本書細細閱讀。這樣的畫面真是溫馨感十足。
生活多姿多彩,吉他也是先生的一大興趣愛好,擺放在墻角的吉他是學生時代的印記,現在也成為了房間的裝飾品。床頭設有插孔,方便日常手機充電。
書房
由于沒有客臥,所以在書房加裝了榻榻米,可以在此午間小憩,朋友來時也可以作為客房使用。榻榻米同樣也可打開,增加了收納空間。
衛生間
衛生間采用洗手臺外移的設計,方便了日常的使用。懸空的柜子避免潮濕的同時也方便清理。半面墻貼了白色格紋瓷磚,搭配一盆綠植,滿滿的北歐風。
面積不大的衛浴空間用浴簾做了軟隔斷,能有效的劃分干濕區域。保留的浴室窗戶貼上了磨砂膜,有效保護隱私的同時也增加采光。
