武漢83㎡老破小爆改,動靜分區+立體收納,這個家成功改頭換面!
來源:成都愛空間整裝公司 日期:2022-11-28 09:01:18
- 詳細介紹
『前言』
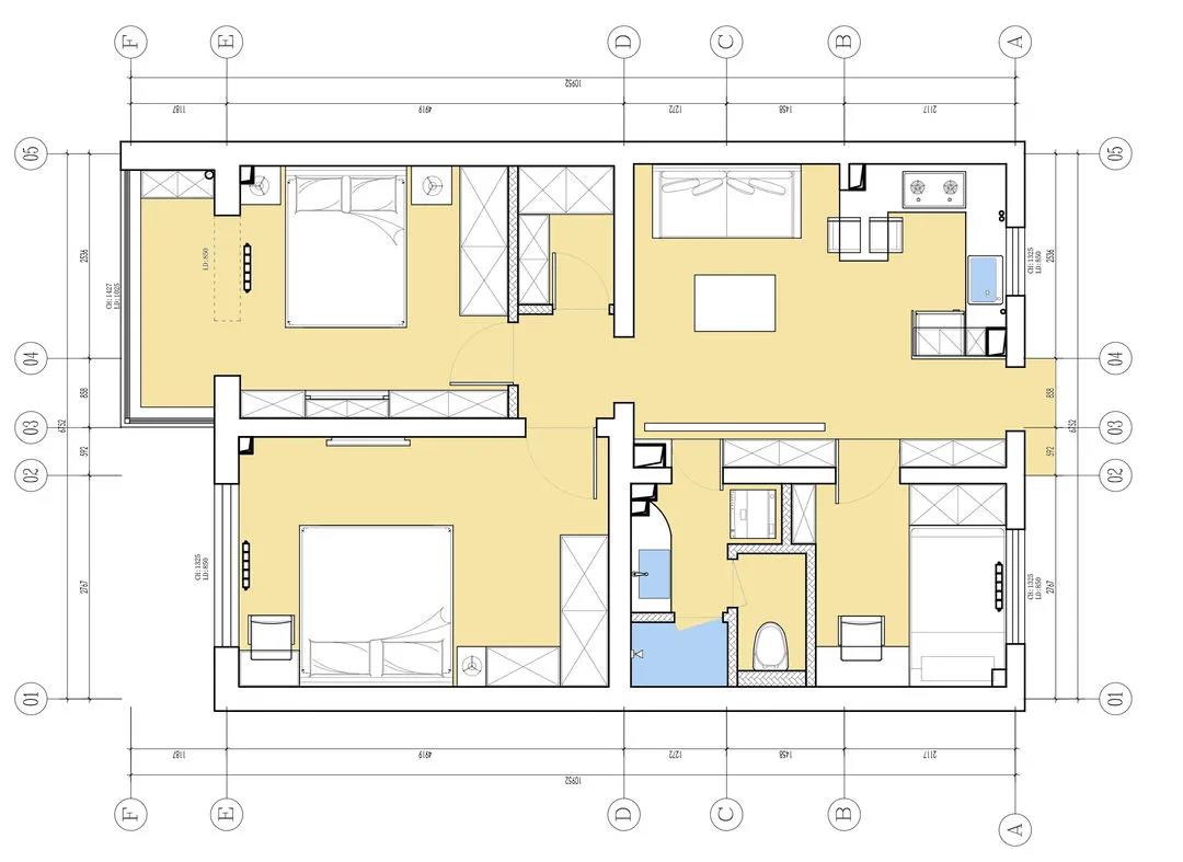
為了擁有一個自己的小家,我和先生在這座繁華的都市買下了這套83㎡的老破小,沒住多久就發覺竟然和我想象的不一樣。家里臟亂差,收納空間不足,所有物品都隨便堆放;動靜不分區,晾曬衣服要穿過主臥;沒有獨立的餐桌,平時用餐只能在客廳茶幾上……于是下定決心請設計師為我們改造。
改造前就把列好的需求清單交給設計師:
1.希望實現功能分區,動靜分區;
2.能有獨立的餐桌;
3.衣服、雜物多,需要有強大的收納空間;
4.保留兩個臥室,因為父母時常會過來小住。
設計師看了我們的需求后就對小屋的戶型進行了改造:
1.以東西方向劃分動靜區;
2.廚房改為開放式,擴大空間,增設就餐區;
3.從玄關到客廳增設收納柜,增加儲存空間;
4.主次臥互換,減少家庭成員間互相打擾。
一起來看看改造后的新家吧~
房屋信息:
戶型:三現代簡約室一廳
風格:
常住人口:2人
面積:83㎡
裝修花費:15萬
玄關
原本老氣橫生的門,通過兩邊淺色調的墻面中和了入戶門的老氣感。當下最熱門的六邊形方磚我們也不能少,白灰黑金的色彩搭配簡單又個性。
玄關柜選用原木色,自然的紋理為空間帶來生命感。柜子從玄關一直延伸至客廳,拉長視覺空間的同時也增加了更多的收納空間。黑色的把手在原木色上也不覺突兀,還頗有高級感。
客廳
沙發背景墻沒有過多修飾,僅在側面刷上一抹黃色,與原木色為基調的家相互呼應。客廳與臥室空間增加了墻面,能更好的區分動靜區間,同時也增加了隱私性。
棉麻材質的布藝沙發搭配胡桃色的圓形茶幾,簡潔又自然。家里的投影儀選用的是固定式的,具有更好的視聽感受。放不下的廚房用具移到沙發旁竟然不覺突兀,還帶來滿滿的生活氣息。
為了讓客廳更具美感,背景墻兩側的門選擇了與柜體同一色調,看上去就似一個整體。
門上安裝了把手,不像傳統隱形門那樣看不出任何“破綻”,但這也讓日常使用時清晰明了更為便捷。
餐廳
打開廚房,把導臺用做餐桌,現在終于不用在客廳就餐了,雖然面積不大,但不管是平時我們夫妻二人使用還是父母過來小住也能滿足了。
廚房
廚房面積不大,但打開廚房后讓空間看起來不顯擁擠。外墻設計了一塊黑板裝飾,可以做把做備忘錄使用,也作為裝飾讓餐廳擁有更多的生活味。
主臥
原本兩個臥室面積差不多大小,把主次臥互換后就擁有了一個不被打擾的臥室。草綠色的背景墻與原木色的地板搭配起來更具有自然氣息,簡約、清爽卻不單調。
L型的衣柜延伸至床頭,獨特的造型設計無需再另外購置床頭柜。門后掛了一面穿衣鏡,每個細節都做了有效的設計。
臥室窗簾沒有選擇落地式,窗簾雙層的設計能照顧到不同時間的使用,白天拉上白紗,讓照射進來的光線不再那么強烈,晚上拉上遮光簾,保證了睡眠環境。
次臥
雖然父母不經常住在這里,但次臥也按照了他們的喜好裝飾。全屋原木色+白色的基調看上去干凈利落。
由于客廳沒有安裝電視,為了滿足老人的需求,在臥室里安裝電視機,躺在床上也能看電視。全屋定制的頂天立地柜收納空間十足。
陽臺銜接處砌了一堵矮墻,成為休息區與陽臺的隔斷,暖氣片也正好安裝于此。遮光窗簾也掛在這里,私密的空間有更好的睡眠。
一排多肉植物,為家帶來生命力。因為次臥不常使用,所以在陽臺晾曬衣服也不會打擾。
書房
書房從客廳的隱形門進入,設計師為喜歡閱讀的我們設計了一個嵌入式書架,既不占用空間面積,又能收納更多圖書。
工作臺位于窗戶邊,擁有極好的光線,看書工作也不傷眼睛。工作臺可以容納兩個人同時使用,滿足在家工作的需要。
衛生間
另一扇隱形門內是衛生間,寬闊的空間面積把衛浴分離,洗手池也安裝在衛浴外面,斜角的臺面設計能更順暢的打開門。
門后設計了嵌入式的開放柜,增加了衛生間的收納空間,下方的位置正好能容納下洗衣機,整個空間動線更加流暢。
獨立的空間安裝了智能馬桶,感受現代化帶來的舒適生活。熱水器安裝在此,能擴大浴室空間。
不同于衛生間其他墻面,浴室的一面墻選擇了幾何花紋的墻磚,這種墻磚不僅有更好的防水效果也能裝點浴室,洗澡也能有個好心情。
態度要端正、按時完成作業、作業不拖拉。
