戶型優化丨這套120㎡新中式家,把每個房間功能發揮到極致
來源:太原愛空間整裝公司 日期:2022-11-28 10:55:46
- 詳細介紹
設計師說
張設計認為室內設計根源是對生活環境和生活品質的提升,根據規格規制合理計劃實施,做到想要的得以實現。裝修不僅僅是做了一個項目施工,而是要以一個項目的完成,體現業主品味和提升業主生活品質的一個規劃設計。
??戶型基本信息
小區:金泰公寓
面積:120㎡
風格:新中式
裝修預算:15萬
??戶型介紹
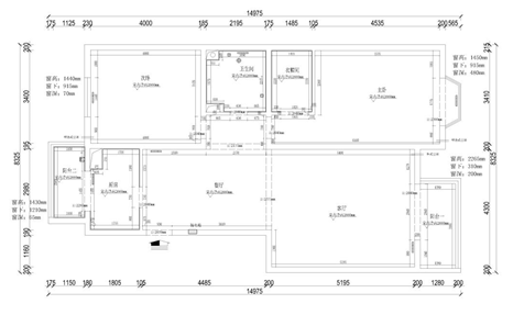
A.原建筑結構
原始戶型圖
此戶型的優點是:
a.南北通透,格局相對方正。
b.功能分區明確,動靜分區明確。
c.客廳主次臥空間方正大氣,起居空間足。
此戶型的不足之處是:
a.廚房空間較小,廚房陽臺不能達到儲物收納。
b.衛浴空間不足,不能滿足峰值使用。
c.陽臺數量多,容易產生空間浪費。
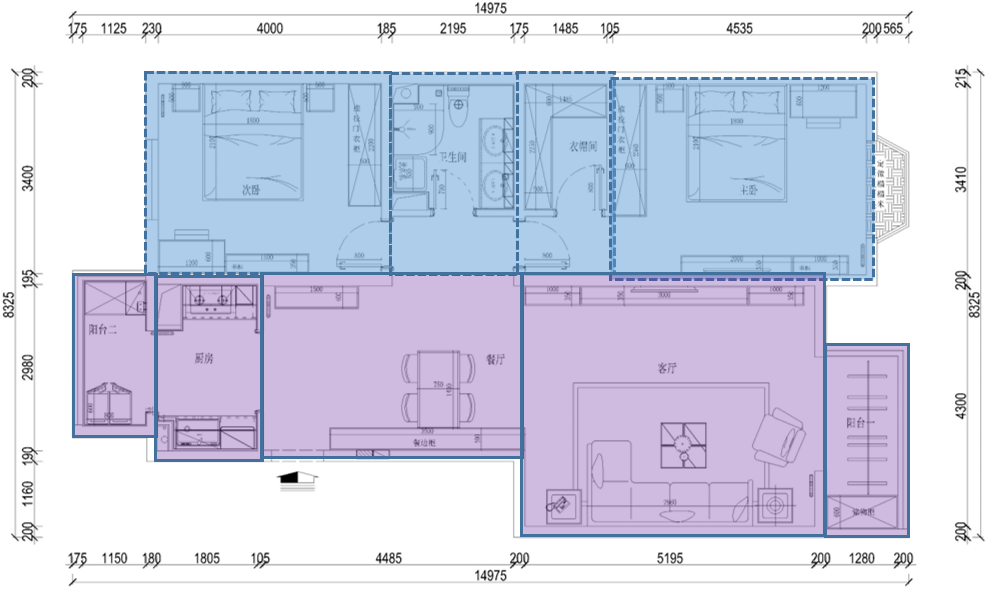
B.方案布局規劃
動靜分區
布局規劃
戶型優化解決方案:
a.開放廚房門洞,提高南北通透度。
b.餐客廳分區不互擾,陽臺增強儲物。
c.衛浴增加雙盆設計,增強峰值利用率。
d.獨立衣帽間的規劃,增強儲物及收納。
e.主臥異形窗戶位置做榻榻米,增強空間靈活性。
??各個空間效果圖
客廳
餐廳

廚房
臥室

衛生間
